A renewed house with a wonderful sea view
Lumemarja tee 19, Haabneeme alevik, Viimsi vald
112.90 M²862 M² plot3 Rooms2 BedroomsSaunaTerraceFireplace460 000 €
Unique opportunity to become the owner of a wonderful home close to the sea. The house, which has just undergone a complete renovation, is located in Haabneeme, 140 m away from the sea. The house can be characterized as follows - a big-hearted house in a compact package.
Your new home has everything you need - a kitchen made by the quality Italian kitchen manufacturer Veneta Cucine, with necessary premium-class appliances, a living room with a sea view, where a fireplace is naturally included, a sauna, a comfortable and cozy bedroom, an additional room that can be used as a study or an extra bedroom, a utility room/pantry, 3 bathrooms, a large sunny terrace, and a beautifully maintained garden with rose bushes, fruit trees, and berry bushes.
The entire house has just received a new exterior and interior finish. The walls are painted in light tones, the floors have high-quality 1-strip natural parquet, the bathrooms are tiled, and very high-quality sanitary ware has been installed. The heating is provided by an economical air-water heating system, and the whole house has underfloor heating. The house is ready for moving in.
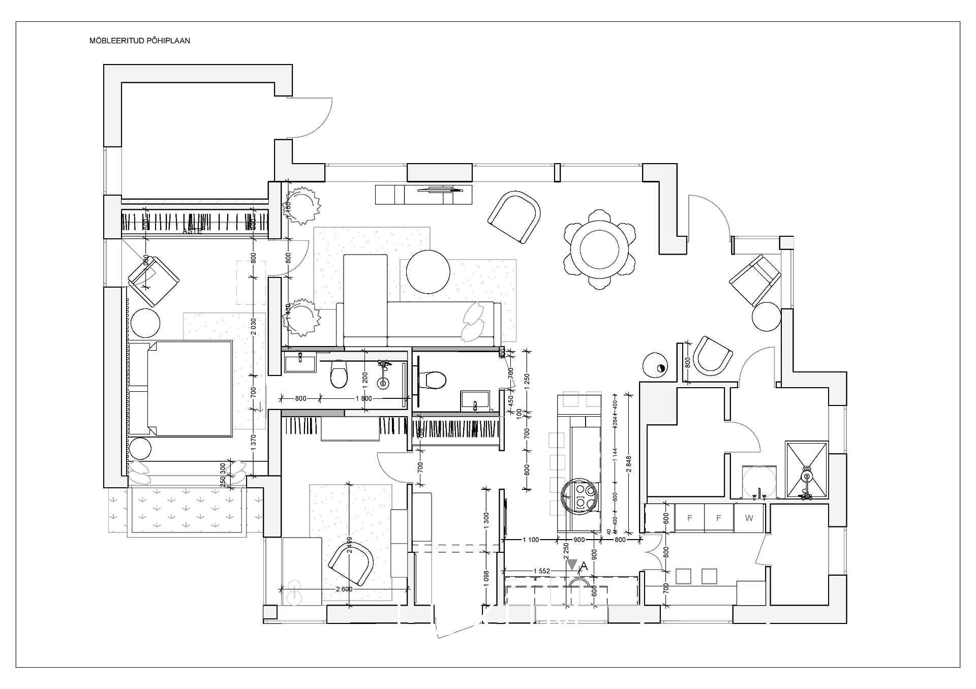
The total area of the house is 112.9 m2, and the plot size is 862 m2.
The wooden frame house is built on a strip foundation and the facade is covered with ceramic bricks. The house has a stone roof and triple glazed wooden-aluminum windows.
Other objects















































































































