Uus eramu, saun, kamin, garaaz
Ampri põik 5, Lubja küla, Viimsi vald
367.70 M²1799 M² krunt6 Tuba4 MagamistubaSaunTerrassKamin999 980 €
Uus eramu Viimsis privaatsel tupiktänaval!
NB! Kuulutuses nähtavad mööbliga pildid on illustratiivsed, kuid vastavad täpselt ruumide mõõtmetele. 
ERAMU
Hoone on uus ja kasutamata. Elamispind kokku on 312,m², millele lisandub väliterrass 55,6m².
Hoone arhitekt on väga hinnatud arhitekt  Aigar Roht (AB Korrus).
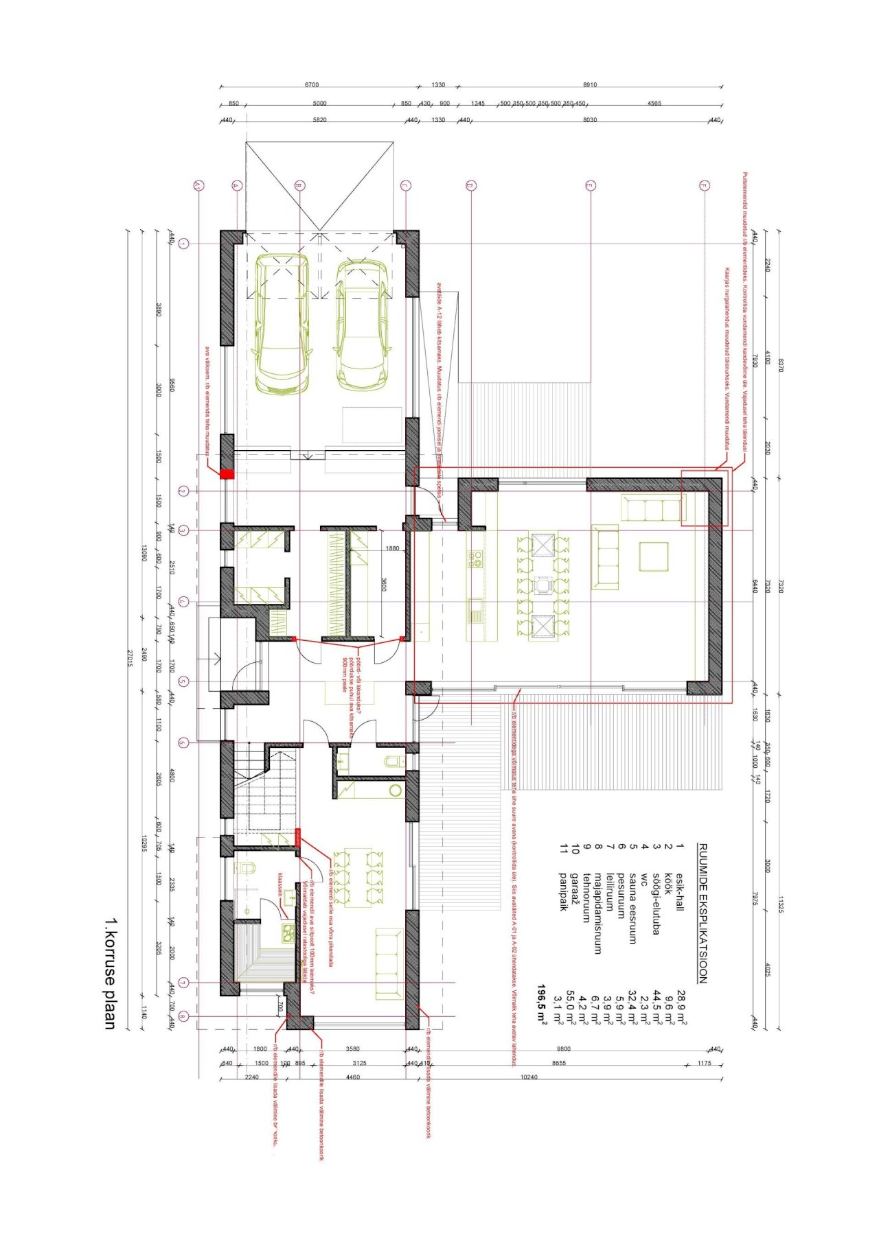
I KORRUS
Avar ja valgusküllane (puuküttelise) kaminaga elutuba, on kõrge laeprofiili ja maast laeni akendega, kust on pääs sisehoovi välisterrassile.
Sisekujunduses harmoneerivad tume vengepuit ja valge värvi kooslused, luues kontrasti ja selgeid modernseid disainijooni. 
Mahukas elutuba, köök ja söögituba paiknevad mõnusalt avatud ruumis, kus on ruumi kogu perele mõnusalt koos aega veeta, pindala moodustab kokku 65,3m².
Esimesel korrusel paiknevad veel kabinett (10,8m²), ruumikas maastlaeni akendega saun koos leili/duśśiruumi ja eesruumiga (21m²),  (WC 2,5m²) ja eradi avar majapidamisruum. Väga avaras ja esinduslikus esikus on spetsiaalne asukoht sisseehitatud riideekapiks ning samuti asub sissepääsu juures eraldi avar garderoobituba.
Soojas garaazis (42m²) on palju uumi kahele autole.  Tehnoseadmete ruum paikneb sissepääsuga maja küljest. 
Esimese korruse pindala kokku on 176m².
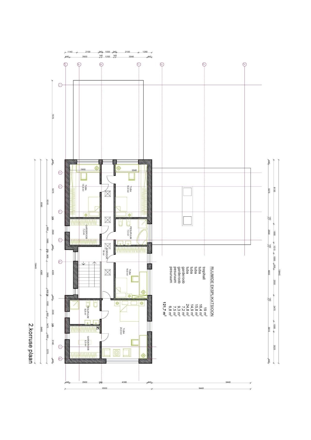
II KORRUS
Hoone teisel korrusel paiknevad 4 luksuslikku magamistuba, kõikides tubades on eraldi garderoob ja dusśíruum tualetiga.
Tubade suurused koos garderoobi ja dusśiruumidega (26,1m²; 26,2m²; 23,7m²; 41,2m²;).
Teised pakkumised piirkonnas
































































































































