A-energiaklassi maja Haabneeme rannapiirkonnas
Rohuneeme tee 28, Haabneeme alevik, Viimsi vald
248.30 M²1106 M² krunt5 Tuba4 MagamistubaTerrassKamin950 000 €
Kui otsid kodu, kus disain, tehnoloogia ja loodus kulgevad ühes rütmis, siis see 248.3 m² suurune arhitektuurselt silmapaistev kodu Haabneeme südames, on täpselt Sulle. Asukoht on vaid 250 meetri kaugusel liivarannast ning see on loodud inimesele, kes hindab kvaliteeti, avarust ja läbimõeldud lahendusi.
Valgus, vorm ja vabadus
Maja arhitektuur on muljetavaldav – terava joone ja samas sooja materjalivalikuga hoone avab end loodusele, säilitades samal ajal täieliku privaatsuse. Klaaspinnad toovad tuppa valguse ja vaated, samas kui klaasitud terrass pikendab elutuba aastaringseks õuesolekuks. Aiakujundus on minimalistlik ja jälgib rannaläheduse temaatikat, ühendades kaasaegse joone rohelusega. Maja on projekteerinud tunnustatud arhitekt Sten Ader (SKAD arhitektid), kelle loomingusse kuuluvad mitmed auhinnatud eramud ja ühiskondlikud hooned.
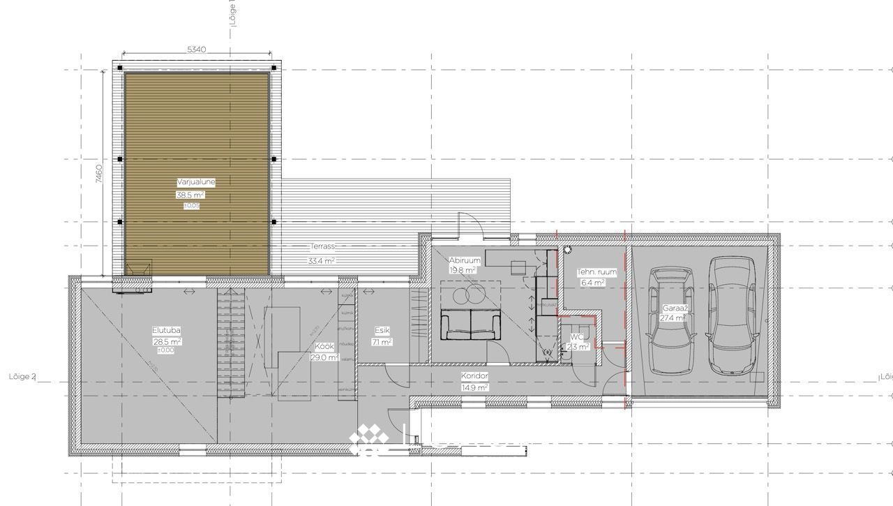
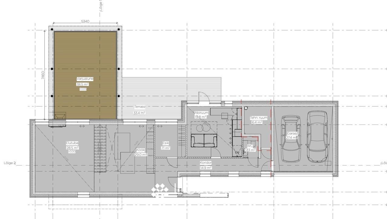
Planeering – funktsionaalsus läbi ruumi dünaamika
Esimene korrus:
• Esik praktilise walk-in garderoobiga
• Avar elutuba disainkamina ja pääsuga klaasitud terrassile
• Köök koos sisseehitatud saare, söögiala ja tipptehnikaga
• Kontor või magamistuba – inspireeriv koht töötamiseks või puhkuseks
• Külaliste tualett
• Tehnoruum
• Garaaž
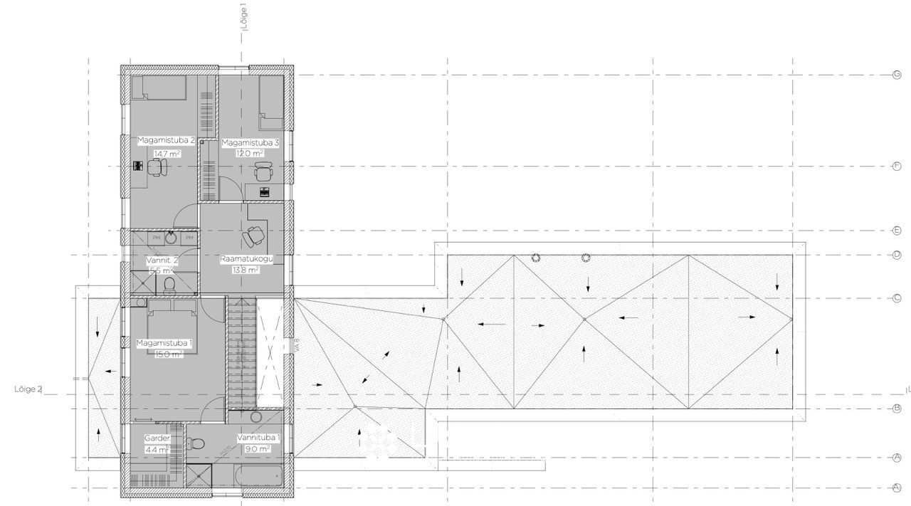
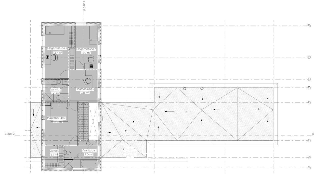
Teine korrus:
• Peamagamistuba privaatse vannitoa ja walk-in garderoobiga
• Kaks lastetuba
• Laste vannituba
• Lugemisnurk
Tehnilised lahendused – tippklassi mugavus ja ökonoomsus
• Päikesepaneelid
Teised pakkumised piirkonnas
































































































































































































