Valgusküllane penthouse Tallinna vanalinna vaatega
Kopli 2, Kalamaja, Põhja-Tallinna linnaosa, Tallinn
76.20 M²3 Tuba2 Magamistuba766 000 €
Vanalinna ja Kalamaja kohtumispaigal, kõrgelt hinnatud Elu Maja residentsis, on müügile tulnud valgusküllane ja ekslusiivne katusekorter idülliliste vaadetega Tallinna linnasiluetile. See on kodu inimesele, kes hindab linnalähedast elustiili, kus parimad koolid, restoranid, kultuurielu, pargid ja mereäärsed jalutusrajad asuvad vaid mõne minuti kaugusel.
Kopli tänava alguses asuv Elu Maja ühendab kaasaegse arhitektuuri, kvaliteetse ehituse ja inspireeriva linnakeskkonna. Vanalinna siluett, Telliskivi piirkonna loominguline atmosfäär ning Kalamaja ajalooline miljöö loovad siin elukeskkonna, kus linnaenergia ja kodurahu on tasakaalus.
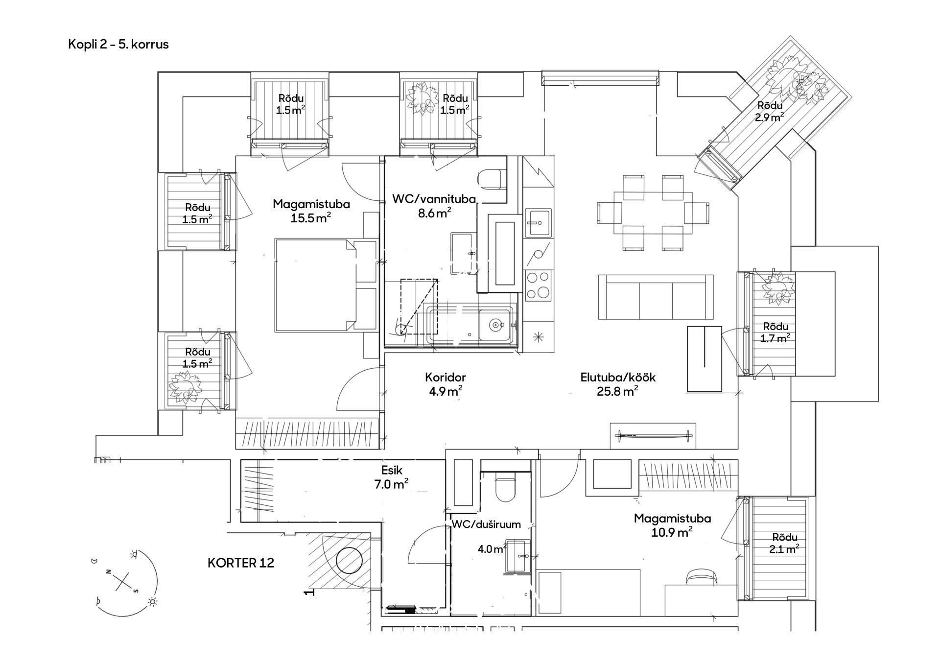
KORTER
Korter asub hoone viiendal korrusel ning on läbi maja planeeringuga, vaadetega kolme suunda. Tänu suurtele aknapindadele on kodu erakordselt valgusküllane ning avarad linnavaated loovad ruumis õhulise atmosfääri.
Korteri südameks on avatud elutoa, söögitoa ja köögi tervik, mille kogu seina ulatuses aken raamib vaateid linnale, sadamale ja Tallinna vanalinna tornidele.
Peamagamistuba paikneb rahulikus sisekvartalis, vaadetega Kalamaja rohelusse ja miljööväärtuslikku arhitektuuri. Magamistoa juurde kuulub aknaga privaatne en suite vannituba koos vanniga.
Teine magamistuba sobib suurepäraselt lastetoaks või kodukontoriks, pakkudes inspireerivaid vaateid vanalinna tornidele ja ümbritsevale pargirohelusele.
Korterisse sisenedes võtab vastu avar esik ruumika walk-in garderoobiga.
Teised pakkumised piirkonnas






























































































































