Viietoaline terrassiga katusekorter Manufaktuuris
Manufaktuuri 5, Sitsi, Põhja-Tallinna linnaosa, Tallinn
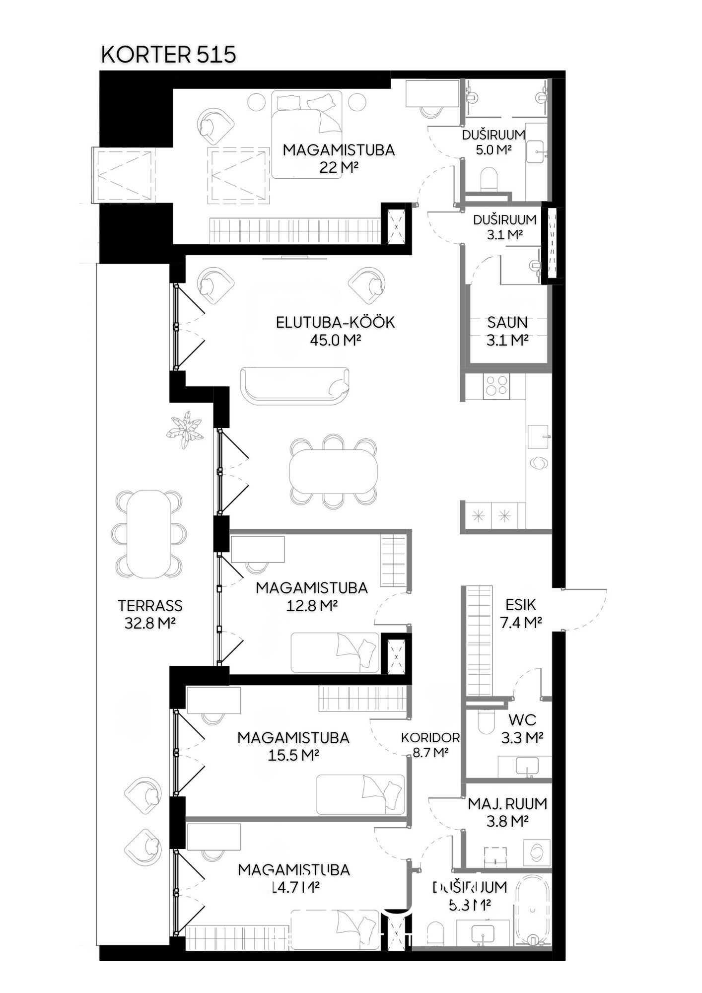
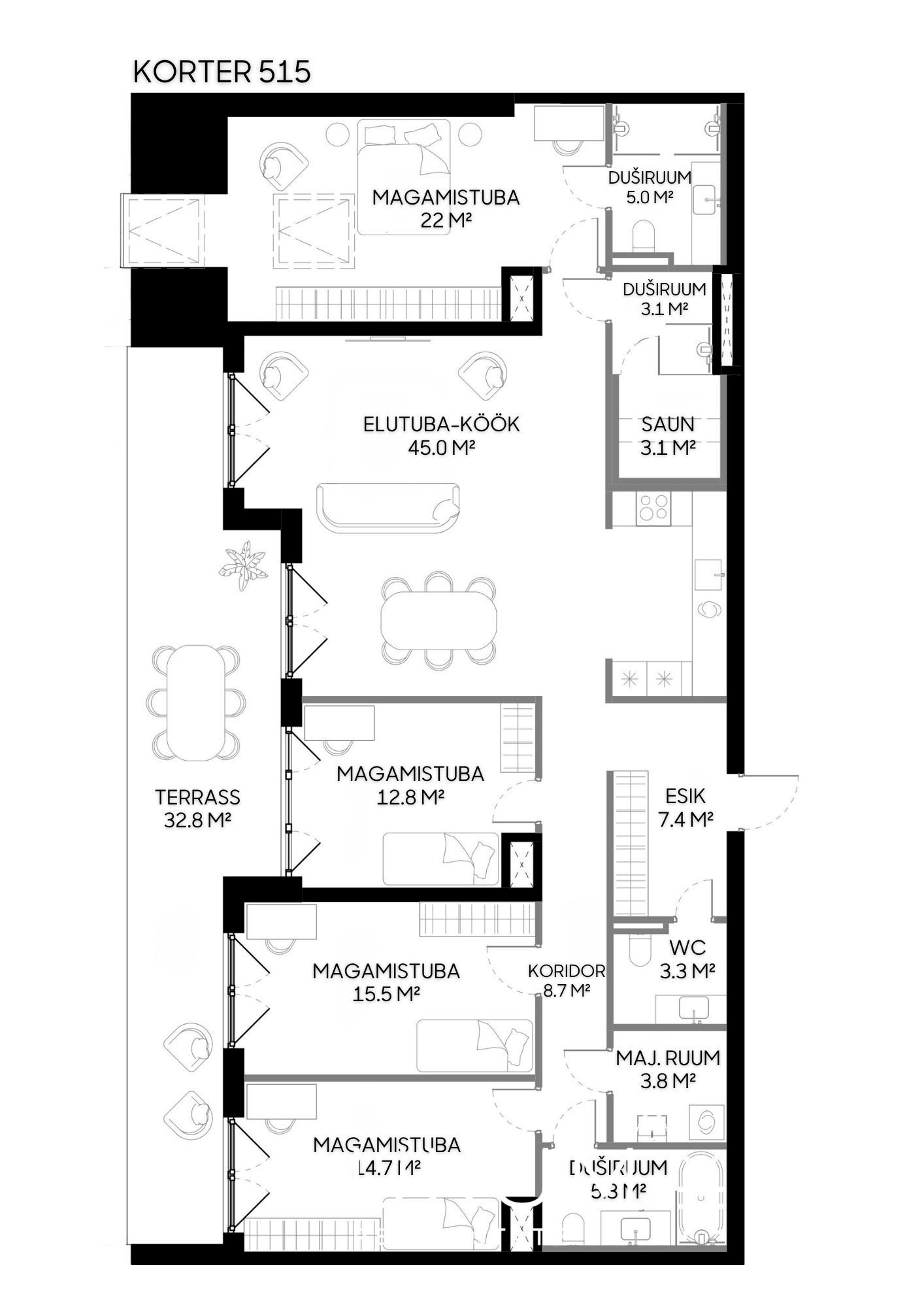
149.70 M²5 Tuba4 MagamistubaSaunTerrass864 000 €
Manufaktuuri ajaloolises vabrikuhoones ootab kodu, mis mõjub kohe – luksuslik pärl, kus arhitektuurne iseloom ja kaasaegne elumugavus on tasakaalus. Katusekorrusel paiknemine loob haruldase rahu ning avab lummavad vaated vanalinna tornidele, mida saad nautida ka avaralt terrassilt. Kaldlaed ja päevavalgus annavad ruumile omanäolise, sooja atmosfääri.
RUUMIDE ELEGANTNE LAHENDUS
149,7 m² suurune viietoaline kodu on avara ja loogilise planeeringuga, kus 45 m² elutuba ja köök moodustavad keskse eluruumi. See on koht, kuhu kogunetakse – nii igapäevaeluks kui ka külaliste vastuvõtuks, loomuliku jätkuna avar terrass.
Igapäevast mugavust toetavad kolm eraldi pesuruumi ja tualetti ning saun, mis loovad sujuva ja stressivaba elukorralduse.
Peamises magamistoas on privaatne duširuum kahe dušiga ning ruum garderoobi lahenduseks, luues selgelt eristuva ja rahuliku tsooni. Avar esik ja eraldi paiknev majapidamisruum toetavad kodu toimimist diskreetselt ja praktiliselt.
32,8 m² ida- ja lõunasuunaline terrass pakub päikest ja privaatsust kogu päeva vältel.
Kuni 2,7 m kõrgused kaldlaed annavad ruumile iseloomu ja eristuva atmosfääri.
See on kodu inimesele, kes väärtustab ruumi, kaasaegseid mugavusi ja keskkonda, kus kvaliteedis ei ole tehtud järeleandmisi.
AJATU ARHITEKTUUR JA KVALITEET
Manufaktuuri Vabrik kannab endas tööstusarhitektuuri väärikust, kus restaureeritud punastest tellistest fassaad ja paekivi loovad ajatu ja äratuntava ilme.
Teised pakkumised piirkonnas



























































































